17619 Boat Club Dr, Fort Myers, FL 33908
Toggle Navigation
Images
Floor Plans
3D Tour
Map
17619 Boat Club Dr
Fort Myers, FL 33908
Scroll to Content
Images
Slideshow
Photo Grid
Hide
Previous
Next
Show more
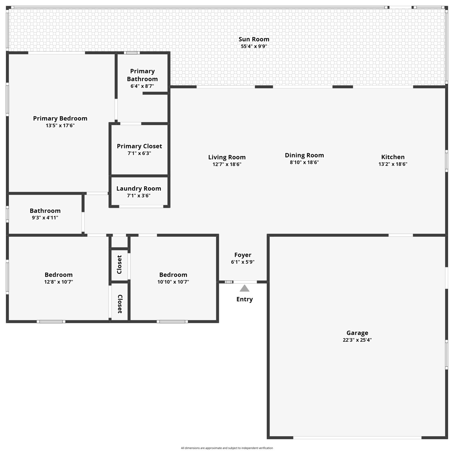
Floor Plans
Slideshow
Photo Grid
Hide
Previous
Next
3D Tour